Products
  

Use & Specific features
Design & Technology
Image gallery

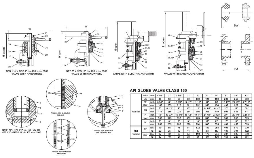
Api Globe Valve Specification